Развернуть карту

Аренда ПСН, Подольск, Подольск, 18000 руб.

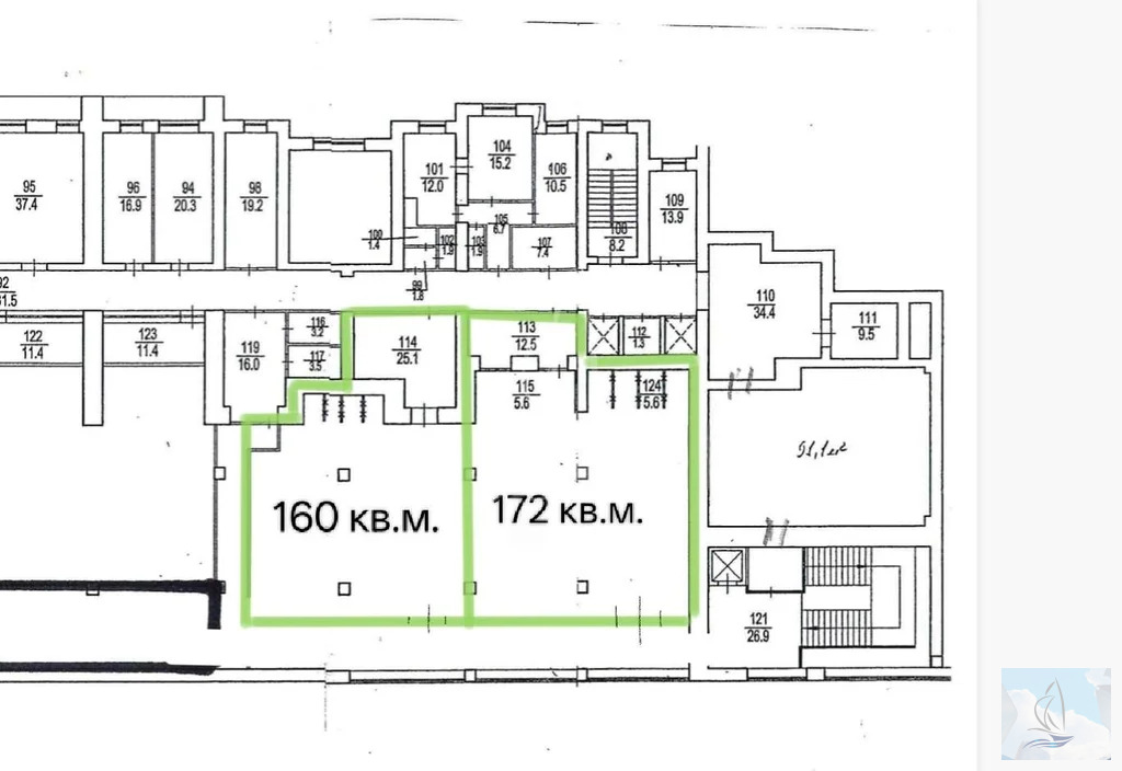
  • Общая площадь, м²172.0
Адрес: Подмосковье, Подольск, Подольск

Без комиссии! Прямой представитель собственника!

Предлагается в аренду помещение по адресу: г. Подольск, ул. Комсомольская, 46, в ТЦ "Комсомольский"

Общая площадь помещения составляет 172 кв.м. Второй этаж ТЦ.

Трафик: высокий пешеходный и автомобильный трафик.

Имеются удобные подъездные пути.

Реклама: есть возможность размещения рекламы на фасаде здания, что привлечет дополнительный поток клиентов. Имеется стихийная парковка.

Планировка: планировка зальная

Помещение имеет общую входную группу со стороны улицы.

Вытяжка: есть.

Потолки: высота потолков 2.7 м.

Условия аренды:

Предоставляются арендные каникулы на заезд.

Возможна аренда различных площадей.

Договор аренды прямой. Долгосрочный, либо на 11 месяцев.

Арендная ставка. Отдельно оплата коммунальных платежей.

Обеспечительный платеж составляет одну арендную месячную плату.

Прочие условия:

Помещение свободно и готово для аренды.

Если возникли дополнительные вопросы, вы можете связаться по телефону!



18000 руб. | 273 $ | 239 €

Ольга Лихачева

+7 (925) 336-59-48

Изменено: 18 Feb 2026, 19:30:01