Развернуть карту

Продажа склада, Подольск, 345800000 руб.

  • Общая площадь, м²3458.0

Арт.
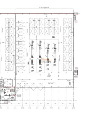
Продается производственно-складское помещение класса "А" общая площадь 3458 кв.м. (возможно увеличение).
Высота потолка рабочая - 13.2 м.
Полы - антипыль с нагрузкой 8 т. на кв.м.
Ворота доковые - 4 шт. Все коммуникации, газ.
Парковочные места для легковых авто – 3 шт.
Электрическая мощность 100 кВт (возможно увеличение).
Автоматическая система пожаротушения.
Приточно-вытяжная вентиляция.
Открытая площадка.
Отличное местоположение, доступность общественного транспорта и трудовых ресурсов.
Удобные подъездные пути.
Оперативный показ.



345800000 руб. | 5238751 $ | 4590968 €

Захарова Зинаида Владимировна

+7 (495) 532-41-14

Изменено: 29 Jan 2026, 22:40:01